HL型環鏈斗式提升機適用于垂直輸送磨琢性較大的粉狀、粒狀及小塊狀物料,物料溫度不超過250℃,輸送高達40米。環鏈斗式提升機采用掏取式裝料、混合式或重力卸料,輪緣采用組合鏈輪,更換方便,鏈輪輪緣經特殊處理壽命長,下部采用重力自動張建裝置,避免打滑和脫鏈。

1、材質分類
碳鋼:采用Q235碳鋼材質,適合對耐腐蝕要求和衛生要求不高的物料使用,成本較低。
不銹鋼:采用SUS304/316不銹鋼材質,具有耐酸、堿、鹽等腐蝕,高溫下抗氧化、硫化、氯化、氟化、干凈衛生等特點。

2、外形分類
單通道:中間一個箱體,單通道環鏈斗式提升機是料斗的上行和下行都是在一個機殼通道內。
雙通道:中間兩個箱體,上升通道和下降通道分別獨立,不宜蕩料,提升效率高,提升量要比單通道垂直提升機提升量高30%左右。





HL環鏈型斗式提升機是生產線中常用的斗式提升機設備,適用于輸送堆密度不大于1.5t/m3的物料的粉狀、粒狀、小塊狀的磨琢性較大的物料,如糧食、煤、水泥、碎礦石、化肥等,提升高度高達40米,物料的溫度不得超過250℃。
環鏈斗式提升機適用于各種散狀物料垂直提升,物料溫度≤250℃

1、運行平穩、輸送效率高。
2、料斗形式多,可根據物料性質選用。
3、適應性強、安裝維修方便、使用壽命長。
4、整機體積小、轉速高、可確保快速均勻輸送。

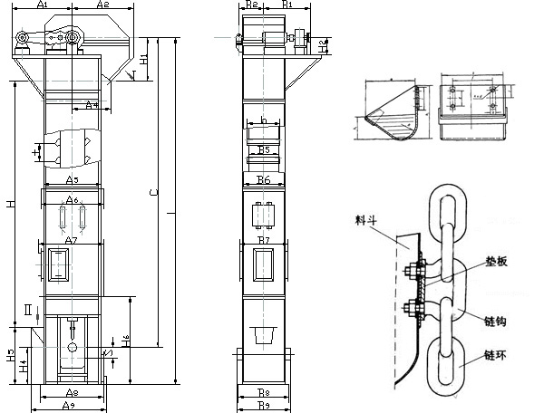
HL型環鏈斗式提升機由運行部件、驅動裝置、上部裝置、中部機殼、下部裝置組成。
運行部件---由料斗和專用圓環鏈條組成,鏈條抗拉強度高、耐磨性好。
驅動裝置---采用多種驅動組合驅動,(依用戶實際需要而定).驅動平臺上裝有檢修架和欄桿。驅動制裝置分左和右裝兩種。
上部裝置---安裝有軌道(雙排鏈)、逆止器、卸料口裝有防回料橡膠板。
中間節---部分中間節裝有軌道(雙鏈),以防止鏈條工作中擺動。
下部裝置---安裝有自動張緊裝置。

TH型斗式提升機 ——ZH型(中深斗)一般使用于輸送濕的、結塊、較難拋出的物料,如濕砂、型砂、化肥、堿粉等。
TH型斗式提升機 ——SH型(深斗)一般使用于輸送干燥的、松散易于拋出的物料,如水泥、碎石、煤塊等。

我公司生產的HL型環鏈離心斗式提升機,由運動部分(料斗與牽引鏈條)、帶有傳動鏈輪的上部區段、帶有拉緊輪的下部區段、中間機殼、驅動裝置、逆止制動裝置等組成(見下圖)。本提升機的料斗為間斷式布置,利用"掏取法"進行裝載,"離心投料法"卸料。本提升機的牽引機構是兩根環形鏈條.我公司生產的HL型環鏈離心斗式提升機,由運動部分(料斗與牽引鏈條)、帶有傳動鏈輪的上部區段、帶有拉緊輪的下部區段、中間機殼、驅動裝置、逆止制動裝置等組成(見下圖)。本提升機的料斗為間斷式布置,利用"掏取法"進行裝載,"離心投料法"卸料。HL型斗式提升機的牽引機構是兩根環形鏈條。
| 項目 | |||||||||
| HL300 | HL400 | ||||||||
| S制法 | Q制法 | S制法 | Q制法 | ||||||
| 輸送能力,平方米/小時 | 28 | 16 | 47.2 | 30 | |||||
| 料斗容量,升 | 5.2 | 4.4 | 10.5 | 10 | |||||
| 斗距,毫米 | 500 | 500 | 600 | 600 | |||||
| 運行部分(料斗牽引鏈條) 公斤/米 | 24.8 | 24 | 29.2 | 28.3 | |||||
| 牽引鏈條 | 型式 | 鍛造環形鏈 | |||||||
| 圓鋼直徑(毫米) | 18 | 18 | |||||||
| 節距(毫米) | 50 | 50 | |||||||
| 破斷強度(公斤) | 12800 | 12800 | |||||||
| 料斗運動速度(米/秒) | 1.25 | 1.25 | |||||||
| 傳動鏈條軸轉數(轉/分) | 37.5 | 37.5 | |||||||
| 輸送物料的散狀比重 | H,米 | N,千瓦 | H,米 | N,千瓦 | H,米 | N,千瓦 | H,米 | N,千瓦 | |
| 0.8 | 59 | 6.35 | 64 | 4.36 | 30 | 7 | 33 | 6.3 | |
| 1.0 | 52 | 7.55 | 60 | 5.12 | 27 | 7.6 | 30 | 7 | |
| 1.25 | 41 | 8.7 | 49 | 5.3 | 23 | 8 | 26 | 7.6 | |
| 1.6 | 31 | 9.7 | 39 | 5.3 | 18.5 | 8.4 | 22 | 8.2 | |
| 2.0 | 24 | 9.7 | 29 | 5.35 | 15 | 8.6 | 18 | 8.4 | |
| 傳動裝置制法 | C1 | C2 | C3 | C4 | C1 | C2 | |||
| 圓柱齒輪減速機 | 傳動裝置右裝 | JZQ400—IV—3U | JZQ400—IV—3U | ||||||
| 傳動裝置左裝 | JZQ400—IV—4Y | JZQ400—IV—4Y | |||||||
| 電動機型號 | Y132M2—6 | Y160M—6 | Y160L—6 | Y160M—6 | Y160L—6 | ||||
| 傳動裝置功率(千瓦) | 5.5 | 7.5 | 7.5 | 7.5 | 7.5 | 7.5 | |||
| 棘輪制動裝置(齒輪X模數) | 6X18 | 6X18 | 8X15 | 8X15 | 6X18 | 8X15 | |||
| 傳動裝置重量(公斤) | 628 | 702 | 870 | 885 | 902 | 917 | |||
| 物料的塊度(毫米) | 25 | 35 | 45 | 55 | |||||
| 型號 | 輸送量 | 料斗 | 傳動鏈輪轉速 r/min |
牽引部件 | |||||
| Zh m3/h |
Sh m3/h |
容積(L) | 斗距 mm |
環鏈規格 | 環鉤規格 | 載荷 KN |
|||
| Zh | Sh | ||||||||
| TH160 | 8 | 10 | 1.2 | 1.9 | 355 | 65.8 | Φ12×45-7 | Φ12×40-M14 | ≥250 |
| TH250 | 30 | 48 | 3 | 4.8 | 512 | 46.8 | Φ18×64-7 | Φ18×64-M14 | ≥320 |
| TH315 | 37 | 58 | 3.7 | 5.8 | 512 | 42.5 | Φ18×64-7 | Φ18×64-M14 | ≥320 |
| TH400 | 58 | 92 | 5.9 | 9.4 | 512 | 37.6 | Φ18×64-7 | Φ18×64-M14 | ≥320 |
| TH500 | 81 | 129 | 9.3 | 15 | 688 | 35.8 | Φ22×86-7 | Φ22×86-M18 | ≥480 |
| TH630 | 144 | 207 | 14.6 | 23.5 | 688 | 31.8 | Φ22×86-7 | Φ22×86-M18 | ≥480 |
說明:
1.訂貨時除注明型號外,必須提供提升高度數據。
2.深斗式料斗適用于干燥松散物料,淺斗式料斗適用于潮濕粘性物料。


您在采購環鏈斗式提升機時,請將您需要的規格、型號告知生產廠家銷售人員,他們會問提供詳細報價作為參考依據,如果您對本設備不是很了解時,可將提升物料顆粒度大小,有無粘度,含水大小與提升量和提升高度,使用工況與安裝環境告知我公司銷售或技術人員,他們會幫您選型一款符合現場使用要求的環鏈斗式提升機。
Copyright ? 2008-2025 螺旋輸送機廠家-新鄉市大漢振動機械有限公司 All Rights Reserved 版權所有
網站備案號:豫ICP備09002479號-47
網址:http://www.jiaxiangxc.cn/新鄉大漢機械廠家專業生產螺旋輸送機、皮帶輸送機、提升機等機械







